Výsadba stromů v Novém Městě nad Metují, II. etapa
- Název projektu: Výsadba stromů v Novém Městě nad Metují, II. etapa
- Zpracovatel PD: green4plan s.r.o.
- Celkové výdaje projektu: 133 255 Kč
- Dotace Státní fond životního prostředí: 111 462 Kč
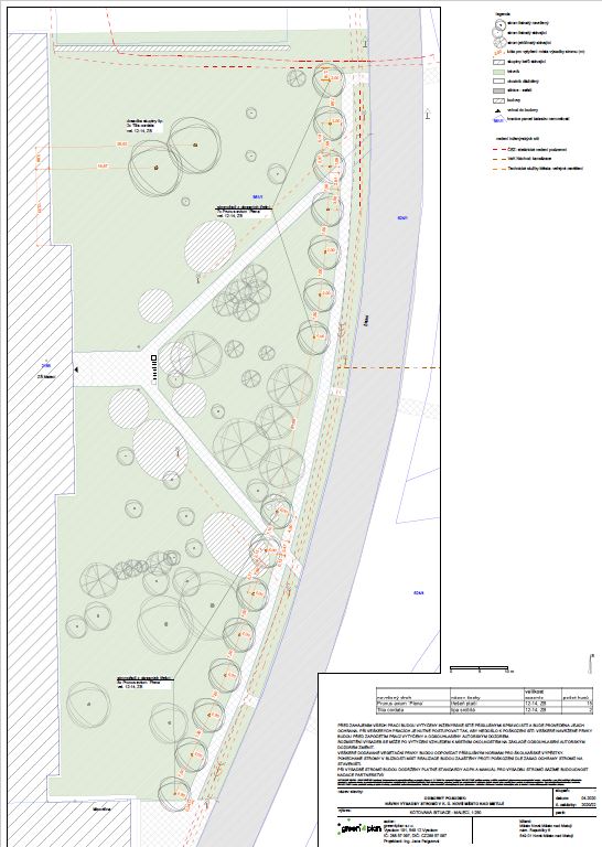
Předmětem projektu je výsadba 17 kusů listnatých stromů v Novém Městě nad Metují v katastrálním území Nové Město nad Metují. Konkrétně se jedná o výsadbu stromořadí z 15 ks okrasných třešní lemující chodník v ulici Školní a výsadbu 2 ks lípy srdčité, které doplní stávající výsadby v předprostoru základní školy Malecí.
Datum vložení:
18. 5. 2020 20:36
Datum poslední aktualizace: 7. 6. 2024 13:39
Datum poslední aktualizace: 7. 6. 2024 13:39



